5 locali in vendita

Torino, Via G. Fattori - Pozzo Strada-Viberti
€ 319.000
5 locali 5 locali
160 Mq 160 Mq

5 locali in vendita

Torino, Via G. Fattori - Pozzo Strada-Viberti

Descrizione annuncio

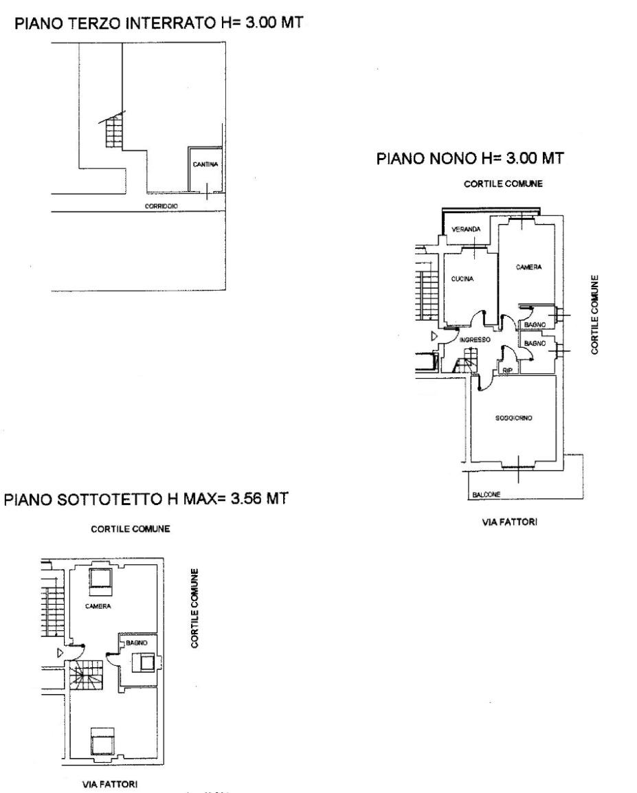
Lo Stabile Signorile costruito nella metà degli anni 70, dotato di portineria, giardino condominiale, videocitofono, videosorveglianza e riscaldamento sia a serpentina (al nono piano) che radiatori con valvole e contacalorie (al decimo piano), è ubicato in via Fattori nelle immediate vicinanze di Trapani, Peschiera, Monte Cucco e della Metropolitana L'alloggio è sito al nono e decimo piano ed ha una vista a 360° su Torino, l'arco alpino e la collina. L'ingresso è dotato di scala che collega al 10° piano e disimpegna gli ambienti. Il grande Soggiorno si affaccia su un terrazzino dove trascorrere momenti di relax. La cucina di ampie dimensioni è fornita di balcone verandato. Le tre camere (una al nono e le altre due al decimo) sono di comoda metratura. I tre bagni sono tutti finestrati ed hanno doccie e vasca. Concludono la proprietà il doppio ingresso, il ripostiglio, la tripla aria d'esposizione, la cantina e la possibilità di Box Auto Doppio. Completamente Ristrutturato con materiali di pregio: infissi in legno con doppi vetri, porte interne a scrigno, parquet di ulivo, quattro condizionatori, velux e persiane elettriche... Panoramico. Ottimo.

Mostra tutto

Nelle vicinanze

Trasporto pubblico Trasporto pubblico
Monte Grappa
Monte Grappa
800 m
Pozzo Strada
Pozzo Strada
990 m
stazione di Torino Porta Susa
stazione di Torino Porta Susa
2,3 Km
stazione di Grugliasco
stazione di Grugliasco
3,0 Km
Trapani
Trapani
390 m
Ricariche auto elettriche Ricariche auto elettriche
Bluetorino Fidia
1,4 Km
Bluetorino Risorgimento
1,7 Km
RSA Grangia - Via Ada Negri | Duferco
2,0 Km
Bluetorino Politecnico
2,1 Km
Bluetorino Porta Susa FS
2,2 Km
Scuole Scuole
Scuola Secondaria Statale di Primo Grado "Giuseppe Perotti"
270 m
Scuola Primaria "Arturo Toscanini"
320 m
ITAS Santorre di Santarosa
380 m
Scuola Primaria "Giovanni Fattori"
510 m
Scuola media "Felice Maritano"
700 m
Farmacia Farmacia
Farmacia
150 m
Comunale 7 - Afc
370 m
Sburlati
420 m
Gillone
450 m
Farmacia San Benedetto
500 m
Ospedali Ospedali
Ospedali
730 m
Ospedale Martini - Emergency
740 m
Ospedale Martini
770 m
LARC
2,0 Km
Ospedale Maria Vittoria
2,2 Km
Supermercati Supermercati
Jolly Crai
110 m
In's
300 m
Mercatò
430 m
Ekom
450 m
MD
560 m
Negozi Negozi
Panificio Marchisio
190 m
Pastificio Federico
190 m
Bartolini Anna Latteria
200 m
Il Laboratorio dei Sapori
610 m
Gastronomia da Marinella e Fernando
630 m
Bar Bar
Spritz Cafè
100 m
Bar
570 m
Bar Sport
640 m
Bar Miami
780 m
Sole
840 m
Ristoranti Ristoranti
Pizzeria Silvestro
70 m
Berberè
150 m
Voglia di pizza
340 m
Osteria Novecento
360 m
Antica Trattoria del Sole
480 m
Mostra tutto

Caratteristiche

Rif.:
61119353
Piano:
9 con ascensore (Piano su più livelli)
Condizionamento:
Autonomo
Ascensore:
Riscaldamento:
Centralizzato
Giardino:
Condominiale
Mostra tutto
Prezzo Prezzo
€ 319.000
Rata mutuo Rata mutuo
€ 1.506 / mese
Proponi il tuo prezzoProponi il tuo prezzo

Classe Energetica

E
E
E
E
E
E
E
E
E
EP globale non rinnovabile:
106.69 kW h/m² anno
EP globale rinnovabile:
0.10 kW h/m² anno
EP invernale del fabbricato:
EP estiva del fabbricato:
Anno di costruzione:
1973
Riscaldamento:
Centralizzato
Tipo impianto:
A radiatori
Tipo alimentazione:
Metano

Ti interessa visionare l'immobile?

Fissa un appuntamento  Fissa un appuntamento

Richiedi informazioni

Clicca su Leggi per aprire l'informativa
* Questi campi sono obbligatori

Calcola il tuo mutuo

Semplice e senza impegno
Anticipo

( % )
Mutuo

( % )

pochi semplici passi

inserisci i tuoi dati
Questionario completato
Grazie per aver richiesto un appuntamento senza impegno con un nostro Consulente del Credito e Assicurativo.

Hai inserito correttamente tutti i dati necessari e a breve riceverai una e-mail con un link da convalidare per inviare i tuoi dati.
Affiliato
Studio Pozzo Strada 2 Sas
Corso Trapani, 22 10141 Torino (TO)

Il nostro staff


  • Grazia Inguanta
    Responsabile

  • Sergio Riccardo Marinelli
    Affiliato
Corso Trapani, 22 10141 Torino (TO)
Zona: Pozzo Strada 2-Zona Piazza Rivoli
Mostra su mappa
Orari: Dal Lunedì al Venerdì 09:00 20:30 Sabato 09:00 19:00
Affiliato
Studio Pozzo Strada 2 Sas
Corso Trapani, 22 10141 Torino (TO)

2025 Tecnocasa Franchising S.p.A. - P. IVA 08365160152 - Via Monte Bianco 60/A 20089 Rozzano (MI). Ogni agenzia ha un proprio titolare ed è autonoma. Privacy policy | Policy utilizzo | Cookie policy