Bilocale in vendita

Torino, Via Lorenzo Delleani - Pozzo Strada-Viberti
€ 103.000
2 locali 2 locali
55 Mq 55 Mq

Bilocale in vendita

Torino, Via Lorenzo Delleani - Pozzo Strada-Viberti

Descrizione annuncio

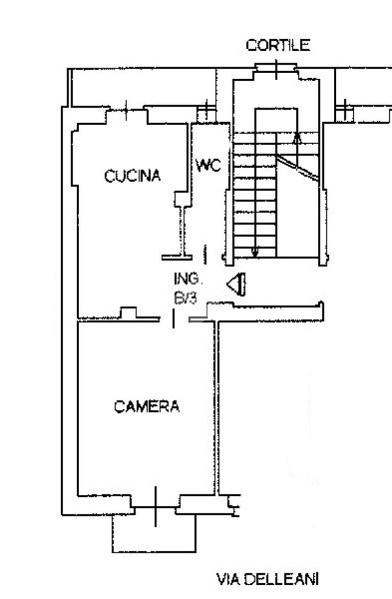
Il Bello stabile, con facciata rifatta recentemente e spese di gestione contenute, è sito in via Delle Ani, nelle vicinanze di Trapani, Peschiera e della Metropolitana. LIBERO SUBITO. L'alloggio è ubicato al terzo piano. L'Ingresso è living nel Soggiorno con zona cucina, il tutto con affaccio su un terrazzino lato cortile, dove trascorrere momenti di relax. La grande camera da letto è dotata di balcone lato strada. Il bagno, di ampie dimensioni, è fornito di doccia ed è finestrato. Riscaldamento Autonomo. Completamente ristrutturato nel 2010. Concludono la proprietà la doppia aria d'esposizione con due balconi e la cantina. Soluzione adatta anche come forma d'investimento.

Mostra tutto

Nelle vicinanze

Trasporto pubblico Trasporto pubblico
Monte Grappa
Monte Grappa
920 m
Pozzo Strada
Pozzo Strada
1,1 Km
stazione di Torino Porta Susa
stazione di Torino Porta Susa
2,3 Km
stazione di Grugliasco
stazione di Grugliasco
3,0 Km
Trapani
Trapani
270 m
Ricariche auto elettriche Ricariche auto elettriche
Bluetorino Fidia
1,4 Km
RSA Grangia - Via Ada Negri | Duferco
1,8 Km
Bluetorino Risorgimento
1,8 Km
Bluetorino Politecnico
2,1 Km
Bluetorino Porta Susa FS
2,3 Km
Scuole Scuole
Scuola Secondaria Statale di Primo Grado "Giuseppe Perotti"
180 m
Scuola Primaria "Arturo Toscanini"
250 m
ITAS Santorre di Santarosa
410 m
Scuola Primaria "Giovanni Fattori"
510 m
Scuola media "Felice Maritano"
740 m
Farmacia Farmacia
Farmacia
240 m
Comunale 7 - Afc
250 m
Sburlati
300 m
Gillone
360 m
Farmacia San Benedetto
620 m
Ospedali Ospedali
Ospedali
690 m
Ospedale Martini - Emergency
710 m
Ospedale Martini
730 m
LARC
1,9 Km
Ospedale Maria Vittoria
2,3 Km
Supermercati Supermercati
Jolly Crai
70 m
Mercatò
300 m
In's
310 m
MD
440 m
Ekom
520 m
Negozi Negozi
Panificio Marchisio
280 m
Pastificio Federico
310 m
Bartolini Anna Latteria
330 m
Il Laboratorio dei Sapori
520 m
Picard
640 m
Bar Bar
Spritz Cafè
30 m
Bar
510 m
Bar Miami
700 m
Bar Sport
760 m
Sole
940 m
Ristoranti Ristoranti
Pizzeria Silvestro
70 m
Berberè
160 m
Osteria Novecento
310 m
Le ramine
380 m
Voglia di pizza
440 m
Mostra tutto

Caratteristiche

Rif.:
61132414
Piano:
3 (Piano medio)
Condizionamento:
Assente
Ascensore:
No
Riscaldamento:
Autonomo
Libero:
Mostra tutto
Prezzo Prezzo
€ 103.000
Rata mutuo Rata mutuo
€ 486 / mese
Proponi il tuo prezzoProponi il tuo prezzo

Classe Energetica

F
F
F
F
F
F
F
F
F
EP globale non rinnovabile:
336.25 kW h/m² anno
EP globale rinnovabile:
4.56 kW h/m² anno
EP invernale del fabbricato:
EP estiva del fabbricato:
Anno di costruzione:
1949
Riscaldamento:
Autonomo
Tipo impianto:
A radiatori
Tipo alimentazione:
Metano

Ti interessa visionare l'immobile?

Fissa un appuntamento  Fissa un appuntamento

Richiedi informazioni

Clicca su Leggi per aprire l'informativa
* Questi campi sono obbligatori

Calcola il tuo mutuo

Semplice e senza impegno
Anticipo

( % )
Mutuo

( % )

pochi semplici passi

inserisci i tuoi dati
Questionario completato
Grazie per aver richiesto un appuntamento senza impegno con un nostro Consulente del Credito e Assicurativo.

Hai inserito correttamente tutti i dati necessari e a breve riceverai una e-mail con un link da convalidare per inviare i tuoi dati.
Affiliato
Studio Pozzo Strada 2 Sas
Corso Trapani, 22 10141 Torino (TO)

Il nostro staff


  • Grazia Inguanta
    Responsabile

  • Sergio Riccardo Marinelli
    Affiliato
Corso Trapani, 22 10141 Torino (TO)
Zona: Pozzo Strada 2-Zona Piazza Rivoli
Mostra su mappa
Orari: Dal Lunedì al Venerdì 09:00 20:30 Sabato 09:00 19:00
Affiliato
Studio Pozzo Strada 2 Sas
Corso Trapani, 22 10141 Torino (TO)

2025 Tecnocasa Franchising S.p.A. - P. IVA 08365160152 - Via Monte Bianco 60/A 20089 Rozzano (MI). Ogni agenzia ha un proprio titolare ed è autonoma. Privacy policy | Policy utilizzo | Cookie policy